津潍高铁东营南站站房钢屋盖投影面积达5.9万平方米,钢结构总重约1.85万吨,高架层屋盖采用大跨度正交空间钢桁架结构体系,由纵横主桁架、屋面次结构及立面钢拱共同构成主承重骨架,复杂的结构设计与超大体量让施工难度、技术要求均处于行业高位。
作为项目金属屋面参建单位,雅博股份旗下山东雅百特锚定工程难点,量身定制针对性工艺技术与务实适配方案,最终确保金属屋面在1450t整体滑移过程中始终保持稳固,与滑移工艺要求完美契合,为这一行业标杆工程的顺利推进提供了坚实保障。
细节聚力:雅百特金属屋面如何适配“整体滑移”?
01技术前置:BIM 协同优化,精准适配滑移受力
鉴于滑移过程中结构受力会产生复杂变化,团队预先借助BIM技术构建金属屋面与主体结构的协同模型,将屋面板排板、檩条布置、天沟节点等关键环节与滑移工艺进行深度融合。通过三维预演对滑移时的受力变形趋势展开模拟,对屋面板拼接顺序与连接方式予以优化,以确保每一块屋面板都能精确贴合结构轮廓,切实避免应力集中问题。

金属屋面檩条分区域加密,通过在特定区域增加檩条数量与密度,能够显著提升屋面系统的整体刚度和承载能力。分区加密设计可依据屋面不同区域的受力特点、跨度大小以及荷载分布情况进行针对性布置,使檩条体系在关键受力区域(如大跨度区域、荷载集中区域或易产生振动的区域)形成更强的结构支撑,有效抵抗钢结构整体滑移过程中可能产生的局部应力集中和变形,确保屋面系统在动态滑移工况下的结构稳定性,避免因局部刚度不足导致的檩条弯曲、失稳或屋面材料损坏等问题。

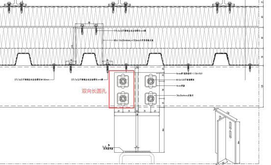
为解决滑移中难以避免的细微双向偏差(水平X轴/Y轴方向)和振动传导,项目团队在檩条与屋面钢结构之间采用了双向长圆孔连接,该设计是针对钢结构整体滑移过程中屋面系统双向扰动控制的关键技术措施。双向长圆孔设计允许檩条与钢结构之间在水平X轴和Y轴两个方向上产生有限的、可控的微量位移,从而主动释放在滑移过程中因导向偏差、基础不均匀沉降或振动扰动时引发的部分约束应力。

这套“以柔克刚”的柔性连接系统,如同为金属屋面赋予了“缓冲关节”,最大限度地降低了金属屋面在双向上的扰动幅度和频率,有效吸收和化解滑移过程中的动态冲击荷载,减少屋面系统的振动响应,保护屋面覆盖材料、采光板、防水卷材等易损部件,同时也降低了连接节点本身的疲劳损伤风险,确保屋面系统在滑移完成后仍能保持良好的结构性能和使用功能。
02材料选型:聚焦耐候适配,筑牢长效防护
结合东营地区气候特性与滑移施工核心需求,金属屋面选用兼具韧性与耐候性的高品质铝合金板材,表面经氟碳喷涂工艺构建起致密防护层,能有效抵御紫外线长期照射与雨水侵蚀,适配户外复杂环境。屋面防水系统采用TPO防水卷材与多道密封工艺相结合的设计方案,天沟部分通过增大排水坡度予以优化,并搭配专用密封胶对节点进行精细化封堵,构建全维度 “防排并重” 防水屏障,既确保滑移过程中无渗漏隐患,更为长期使用筑牢可靠的防护保障。

03节点精筑:细化施工工艺,强化衔接稳固
金属屋面的节点处理为适配滑移工艺之关键所在。屋面板安装时,运用“预排板+现场微调”工艺,使板间拼接达到严密无缝之效果,相邻面板借助直立锁边咬合工艺实现紧密连接,以此确保在滑移过程中不会出现松动情况。针对天沟、檐口等关键节点,采用“焊接加固+密封补强”的双重工艺,对天沟焊接处进行探伤检测,以确保无焊缝缺陷,在檐口部位增设金属收边件,可有效抵御滑移过程中可能产生的气流冲击。

04协同管控:全程动态适配,保障滑移平稳
在施工过程中,施工团队严格依照滑移工程的总体部署执行,将金属屋面施工与主体结构拼装、滑移轨道铺设等工序进行精准且高效的协同衔接。在屋面板安装阶段,同步配合主体结构开展预拼装校验工作,以保障屋面与桁架结构紧密衔接;在滑移作业开始前,对屋面质量展开全面排查,着重检查螺栓紧固程度、密封完整性以及板材平整度,并通过淋水试验验证防水效果,从而消除潜在质量隐患。


在滑移过程中,借助智能控制系统对屋面状态进行实时监测,技术人员全程值守,密切追踪位移与应力变化情况,确保屋面能够随主体结构同步平稳滑移;滑移作业完成后,通过抗风揭试验、二次淋水试验等多项检测,各项指标均符图片合行业规范与项目要求,屋面未出现任何变形、渗漏等问题。

此次工程的圆满完成,是雅百特在金属屋面领域深耕细作、专注工艺适配的切实体现。面对“整体滑移”这一特殊工况,作为参建单位,雅百特始终秉持“以技术服务工程需求”的核心原则,凭借深厚的工艺沉淀与务实的协作态度,为重点工程建设提供助力。对于雅百特而言,这不仅是单一项目的胜利,更是一次宝贵的技术能力淬炼。未来,雅百特将持续聚焦交通枢纽、大型场馆等领域,凭借标准化、精细化的金属屋面工艺体系,为更多重点项目提供坚实保障,在基础设施建设领域稳健发展。

